The Carter
Overview
Features
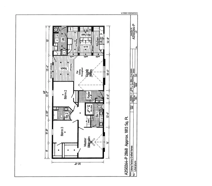
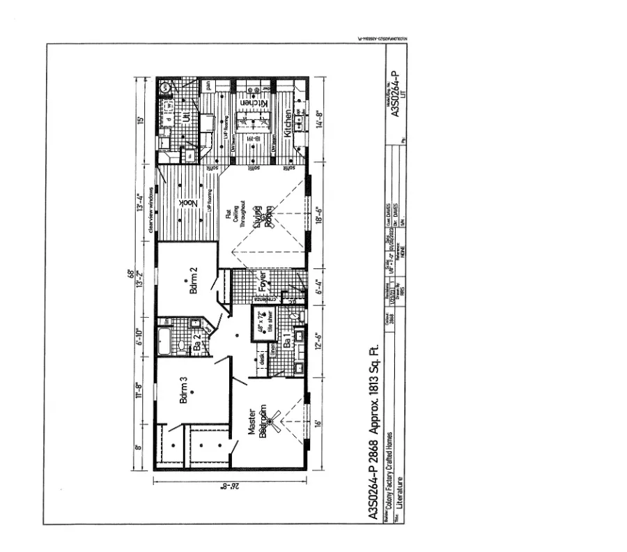
Floor Plan
- IN STOCK
- SALE
The Carter
BEFORE OPTIONS
3 beds
2 baths
1,904 sq. ft.
Overview
Welcome to this beautifully designed 3-bedroom, 2-bathroom manufactured home offering 1,802 square feet of thoughtfully crafted living space. This home features a bright and airy open-concept layout, perfect for entertaining family and friends, with a seamless flow between the living room, dining area, and kitchen. A welcoming entryway foyer sets the tone as you step inside, leading you into the heart of the home. The spacious dining room provides the perfect setting for gatherings, while the large utility room adds convenience and extra storage. Each bedroom is generously sized, offering comfort and flexibility for any lifestyle, and the home is filled with large closets to meet all your storage needs. The primary suite is a true retreat, complete with a luxurious tile shower that adds a touch of elegance to your daily routine. With its functional layout, stylish features, and ample space throughout, this home is the perfect blend of comfort and practicality.
Features
Apron sink
Ceramic tile shower
LVT flooring
Utility sink
5/12 Roof Pitch
Dormers
Bump outs
Floor Plan

We accept trades!
Find a new home you love? Contact us for more information about our trade-in requirements and to schedule your free trade evaluation.
Learn More

























